Как практически в одиночку отремонтировать гараж или мини-дом площадью 23 м² и сделать из него приличный дом.
Друзья Мишель Де Ла Вега в шутку прозвали ее «муравьем» — это прозвище появилось неслучайно, ведь Мишель практически в одиночку отремонтировала мини-дом площадью 23 м² и превратила его в приличное жилье. Мишель признается, что когда она решила заняться ремонтом дома на юге Сиэтла, она ничего не знала о строительстве. Тем не менее, нанять подрядчика для работ ей не позволяли средства, и во все детали в результате пришлось вникать самой.
Результат оправдал все ожидания. Хотя сейчас Мишель уже не живет в доме постоянно (она вышла замуж и планирует строительство нового дома вместе со своим мужем), она всегда проводит здесь каникулы. Как признается хозяйка, для нее это самое спокойное и безопасное место на Земле.
Изначально дом больше напоминал сарай или гараж, и хозяйке пришлось изрядно постараться, чтобы превратить его в приличное жилье. Мишель — художник, поэтому дизайн у нее вопросов не вызывал, чего не скажешь о практических проблемах.
В доме открытая планировка. Спальня находится на деревянной платформе, под которой расположена кухня. Французские входные двери пропускают воздух и солнце, благодаря чему внутри всегда светло и дует свежий ветерок.
Над кроватью на верхнем этаже — три маленьких окошка, из которых открывается вид на внутренний садик. Единственное окно, которое выходит на улицу, расположено на высоком уровне с другой стороны дома.
Интерьер дома оформлен в индустриальном стиле. Хозяйке нравится давать новую жизнь винтажным вещам: открытые стальные полки, старые использованные коробки и фабричные лампы на кухне — все это подержанные вещи.
Напротив кухни — гостиная, в которой даже есть камин. Массивные стальные скульптуры слева от него — работа самой Мишель. Дрова для камина хранятся в бывших ящиках для боевой амуниции, которые продавались в интернете.
Между кухней и гостиной — небольшой диван.
Красный шкафчик в углу когда-то принадлежал United Airlines — в нем хранилось пожарное оборудование. Мишель нашла его на распродаже в интернете.

Рядом с гостиной — ванная. В потолке комнаты есть окно — можно нежиться в ванной и смотреть на облачка или звездное небо.

В небольшом саду растут фруктовые деревья, овощи и цветы.
Симпатичная квартира в гараже — Фотограф из Бордо Джереми Бухгольц решил вопрос с жильем очень экономичным образом. Он по недорогой цене купил старый гараж и оборудовал в нем уютную и удобную квартиру.
20 ухоженных гаражей — 20 гаражей, в которых наводили порядок перфекционисты.
Камеры хранения: как освободить дом, ничего не выкидывая — Где хранить вещи, если нет гаража и дачи? Проводим исследование камер хранения в Москве
Шикарный минидом на колесах из грузовика — На основе грузового автопоезда Renault Magnum неутомимые любители путешествий сделали роскошный и просторный дом на колесах, в котором есть даже гараж для легковой машины!
Домик на дереве: ненужное излишество или полезное дополнение к даче? — Какую пользу может принести домик на дереве, если построить его на обычном дачном участке?
Фотографии и информация с сайта houzz.com
маленький дом, индустриальный стиль, лофтkvartblog.ru
Если Вам хочется сделать свое собственное уединенное место, в котором можно было бы не только отдыхать, но и полноценно жить, тогда стоит задуматься о покупке гаражного бокса. Квартира из гаража позволит обеспечить Вас полноценным жильем на любой случай жизни.
Сейчас стало достаточно популярно “хранилище” для транспортного средства заменять на дополнительные метры для жилого пространства. Самое главное из оригинальной идеи сделать по-настоящему качественное и долговечное жилье, в которое не стыдно привести знакомых или заселиться всей семьей. Поэтапно рассмотрим шаги обустройства квартиры в гараже.
Так как у Вас уже есть в собственности гараж и его место определено на участке, то остается только проверить возможности фундамента на дополнительную нагрузку. Если Вы собираетесь полностью исключить место для стоянки автомобиля, тогда бетонное основание дополнительного усиления не требует. Нужно проверить водоотведение и слив по периметру гаражного бокса. В случае неисправности дренажной системы подвал будет постоянно затоплять.
Если Вы решили сделать гараж с квартирой на втором этаже, тогда Вам стоит укрепить уже готовый фундамент во избежание дальнейшего проседания углов и перекосов стен. Для этого потребуется с помощью 4-6 домкратов (можно вызвать кран) поднять гараж и временно перенести его на несколько метров от текущего положения. Провести дополнительное армирование текущего бетонного основания и залить все бетоном.
Внимание! Если Вы используете в качестве гаража металлический бокс контейнер, тогда дополнительное бетонирование может не потребоваться. Вам необходимо обложить основание кладкой кирпича на высоту 20-30 см. Этого будет достаточно для придания надежности и устойчивости конструкции.

Фото гаража квартиры
Если кровля в гараже не протекает – это безусловный плюс. Однако для создания полноценного жилого помещения нужно проверить не только герметичность кровельного покрытия, но и произвести работы по утеплению и звукоизоляции. Для утепления и шумоизоляции хорошо подойдут плиты из стекловаты или минеральной ваты. Обязательно закрепите листы с внешней стороны вагонкой или листами ГВЛ. Так Вы сможете избежать попадания влаги и гниения утеплителя.
В случае создания мансардного этажа, кровлю следует дополнительно укрепить металлическим каркасом. Для этого монтируется конструкция, внешне похожая на ферму. Она будет разгружать вес снеговой нагрузки в зимнее время и увеличит пространство для жизни. Самое главное провести работы по сварке профилей до отделки комнат внутри помещения бокса. Так Вы обезопасите себя от возможного пожара.
Конструкцию кровли лучше всего выбирать 2-ух скатную, так как она значительно разгружает стены и фундамент. Кроме того, для 2-ух скатной кровли есть готовые решения для вентиляционных путей и системы отопления.

Фото обшивки квартиры из гаража
Здесь все зависит от Вашей фантазии и финансовых возможностей. Самым экономичным вариантом станет обшивка гаражных стен влагостойким гипсокартоном (ГВЛ) с дальнейшей покраской или поклейкой обоев. Также недорогим вариантом обустройства считаются пластиковые панели. Однако они быстро ломаются и для них необходимо укладывать слой панелей Пеноплекса, толщиной не менее 50 мм.
Если Вы хотите сделать из гаража квартиру на раз, тогда выбирайте для обшивки деревянные панели. Это может быть вагонка, с дальнейшим покрытием лаком или олифой, либо сколачивание конструкции стен из блок-хауса. Варианты не из дешевых, но прослужат Вам долгие годы без происшествий. Показать устройство гаража квартиры фото и видео материалы смогут намного лучше текста.

Душ в квартире-гараже
Одной из главных проблем при устройстве жилого гаража является проведение системы канализации и строительство ванной комнаты. Основной нюанс кроется в подключении Вашей системы сливов к общественной канализационной сети. Если вблизи гаража канализация не проходит, тогда Вам остается лишь сделать свой собственный септик и сливать все отходы в него.
Устройство системы водоснабжения и водоотведения не имеет больших сложностей. Главное закупить необходимые материалы для прокладки и соединения труб, а также позаботиться об устройстве своей собственной скважины. Так Вы сможете значительно сэкономить на воде и получать с помощью бойлера горячую воду в любое время суток.

Фото ванной в квартире гараже
На этом рассказ об основных этапах становления гаража как квартиры окончен. Если Вы все еще не ответили себе на вопрос – как из гаража сделать квартиру с удобствами, тогда посмотрите видео ниже. В этом видео квартира в гараже показана на примере одноэтажного бокса, в котором отсутствует место для автомобиля, но есть все необходимое для полноценной и счастливой жизни в любое время года.
garazhtyt.ru
Результат оправдал все ожидания. Хотя сейчас Мишель уже не живет в доме постоянно (она вышла замуж и планирует строительство нового дома вместе со своим мужем), она всегда проводит здесь каникулы. Как признается хозяйка, для нее это самое спокойное и безопасное место на Земле.

Изначально дом больше напоминал сарай или гараж, и хозяйке пришлось изрядно постараться, чтобы превратить его в приличное жилье. Мишель — художник, поэтому дизайн у нее вопросов не вызывал, чего не скажешь о практических проблемах.
В доме открытая планировка. Спальня находится на деревянной платформе, под которой расположена кухня. Французские входные двери пропускают воздух и солнце, благодаря чему внутри всегда светло и дует свежий ветерок.

Над кроватью на верхнем этаже — три маленьких окошка, из которых открывается вид на внутренний садик. Единственное окно, которое выходит на улицу, расположено на высоком уровне с другой стороны дома.
Интерьер дома оформлен в индустриальном стиле. Хозяйке нравится давать новую жизнь винтажным вещам: открытые стальные полки, старые использованные коробки и фабричные лампы на кухне — все это подержанные вещи.
Напротив кухни — гостиная, в которой даже есть камин. Массивные стальные скульптуры слева от него — работа самой Мишель. Дрова для камина хранятся в бывших ящиках для боевой амуниции, которые продавались в интернете.

Между кухней и гостиной — небольшой диван.
Красный шкафчик в углу когда-то принадлежал United Airlines — в нем хранилось пожарное оборудование. Мишель нашла его на распродаже в интернете.

Рядом с гостиной — ванная. В потолке комнаты есть окно — можно нежиться в ванной и смотреть на облачка или звездное небо.

В небольшом саду растут фруктовые деревья, овощи и цветы.
Существуют различные жизненные ситуации, заставляющие искать жилье в совершенно неожиданных местах. К примеру, переоборудование летних фазенд, или ставшая невероятно популярной в последние годы мода на устройство квартирных условий в обычном гаражном боксе.
Сразу же хотелось бы сказать, что проживание в гаражном помещении затруднительно в силу двух основных причин – из-за отсутствия солнечного света и достаточно небольшого по габаритам личного пространства.
Чтобы обеспечить поступление солнечного света внутрь данного специфического жилища, возникает необходимость в коренном переоборудовании кровли бокса. К примеру, можно оснастить крышу люком из монолитного поликарбоната.
Но вместе с тем, продолжительное проживание в гаражном помещении не всегда наполнено лишь только негативом. К примеру, многие автомобилисты не только живут в гараже, но и занимаются там автомобильным ремонтом, так сказать, совмещают приятное с полезным – и больше времени работе уделяют, и идти далеко не нужно после трудового рабочего дня.
Для большинства любителей тюнинга, танкистов, механиков подобная идея станет просто находкой, ведь такие люди днями напролет могут просиживать в гараже за любимым делом, а наличие зоны отдыха и проживания в непосредственной близости станет просто спасением.
Помимо того, проживание в переоборудованном гараже дает невидимые, но очень важные преимущества:
Можно ли жить в гараже по закону? Если есть желание переехать в переоборудованный под жилье гараж, то в первую очередь необходимо обратиться к законодательной базе. В силу того, что существует положение, гласящее, что проживать можно лишь только в помещение, соответствующее определенным нормам и стандартам.
В силу того, что гараж является предметом недвижимости, существует определенная процедура, позволяющая оформить проживание в нем на законных основаниях.
Чтобы проживание в переоборудованном гараже было зарегистрировано законом, в нем, в первую очередь, нужно организовать пригодные под жилье условия и потом оформить его как недвижимость, пригодную для регистрации и постоянного проживания.
B соответствии со статьей 23 ЖК РФ, подобного рода объекты переводятся в статус жилой недвижимости в ходе проверки и прохождения запрашиваемого дела органами местного самоуправления.
Властям потребуется предоставить следующий пакет документов:
Как понятно из вышесказанного, жить в гараже не так-то уж и страшно, а в некоторых ситуациях, даже и выгодно. Прежде чем приступать к переоборудованию гараж в дом своими руками, в первую очередь стоит определиться с планировкой и размещением жилых зон.
Большинство владельцев организовывают подвод всех систем жизнеобеспечения к близлежащим к гаражу хозяйственным постройкам. Существует несколько вариантов переоборудования гаражного помещение под жилье, но из них выделяют всего 2 наиболее оптимальных. И именно о них мы сейчас и поговорим.
Переоборудовать гараж под жилье – идея достаточно простая. Можно организовать вместо фасадного стенового перекрытия стеклянную перегородку. Также возможен вариант замены ворот раздвижной системой створок. Так удастся оставить и ворота и обеспечить прикрывание застекленной части переднего фасада гаража.
То есть, получиться так сказать дом с видом на террасу. Если же речь идет о замене стены стеклянной панелью, то конечным результатом станет просто большущее окно вместо ворот. Кому-то подобный вариант покажется чересчур открытый, поэтому многие останавливаются на переоборудовании ворот раздвижной системой створок.
Кроме того, прозрачные либо полупрозрачные стены можно использовать в качестве разделения помещения на зоны: душевая комната, гостиная и кухня. А всю заднюю сторону помещения можно переделать в спальню.
Безусловно, с подобным проектом не остается места под автомобиль, но вместе с тем получится уютный мини-домик, в котором можно будет проводить время в теплое время года. А если еще оборудовать гараж системой отопления, то он в нем можно будет спокойно жить круглый год.
Самый главный момент в процессе реализации подобной идеи – соблюдение всех норм, позволяющих осуществить полноценное переоборудование гаражного помещения под жилье.
Так, к примеру, имея помещение площадью в 40 , наиболее целесообразно разделить его на следующие зоны:
Задумавшись о переоборудовании гаража под жилье, можно отдать предпочтение варианту с надстройкой. Это позволит и сохранить место для хранения автомобиля, и обзавестись небольшой жилплощадью в непосредственной близости к гаражу.
Стены на втором этаже в данном случае делаются многофункциональными, чтобы была возможность разместить различного рода встраиваемую технику, ящики и кладовку.
Популярным интерьерным решением организации жилья в гараже станет устройство подвижных межзонных перегородок, благодаря которым будет возможность беспрепятственно перемещаться по помещению и менять планировку жилища вместе с его зонами.
Совет! Перед тем, как сделать из гаража жилое помещение, обязательно озадачьтесь вопросом устройства световых точек и розеток: необходимо заблаговременно продумать места расположения электроприборов и выключателей.
Переоборудовать таким образом гараж возможно из любого типа бокса, вне зависимости от его конфигурации и площади. Сегодня очень популярны варианты устройства мансард над гаражом. Более подробно об этом вы можете прочесть в одной из наших предыдущих публикаций
Чтобы в гаражном жилом боксе было комфортно жить, внутри помещения следует организовать следующие строительные и монтажные работы:
Делая жилой гараж, стоит особое внимание уделить вопросу утепления стен и крыши. Этот процесс, на самом деле, не имеет больших сложностей. Главное – правильно произвести расчет объема требуемого материала и обеспечить надежную защиту утеплителя пароизолятором.
А вот проблемы с устройством канализационной системы могут все-таки возникнуть, если в непосредственной близости с гаражом не проходит общественная канализационная сеть.
В данном случае придется закапывать септик рядом с гаражом и время от времени очищать его от отходов, в противном случае в скором времени появится неприятный запах, который будет просачиваться в жилое помещение.
Устроить водопровод и отопление, за неимением таких коммуникаций рядом с постройкой, возможно за счет выкапывания небольшой скважины. Достаточно будет установить небольшой котел и у вас будет и отопление в жилище, и горячая вода.
Еще одним вариантом обеспечения отопления в таком доме может стать печное отопление, работающее за счет возведения, как понятно, печки, функционирующей на дровах или прочем виде твердого топлива.
Что касается проведения света и интернета, то с этими коммуникации все гораздо проще, нежели с предыдущими. Так же легко можно устроить и вентиляционную систему: достаточным будет продолжить 2 вентиляционных канала в кровле.
Основной настоящей «проблемой» при переделке гаража в жилое помещение является возведение и отделка фундамента. Если жилое помещение будет возводиться над гаражом, то в этом случае потребуется полностью снести бокс и укрепить бетонное основание, сделав его более надежным и крепким.
В первую очередь безопасное для здоровья проживание в таком жилье характеризуется соответствующими условиями в помещении: оно должно быть сухим, с полноценной вентиляцией и обеспечением подходящих климатических условий.
И в данном случае имеющие в стенах трещины не так опасны для проживания, как протекающая либо провисающая кровля. Кроме того, при наличии зазоров между стеной и рамой ворот, условия безопасного проживания соблюдаться не будут.
Проживание в помещении с постоянно влажными стенами, наличием воды в подвале, способствующей развитию плесени, грибка, несет большую опасность для человека и его здоровья.
В процессе переоборудования помещения гаражного бокса под жилищные условия очень важно сделать его максимально комфортным и теплым.
Это требует выполнения небольших переделок и разрешения некоторых проблемных моментов:
Совет! Имеющиеся бетонные, кирпичные, цементные поверхности в гараже стоит обязательно забелить известью либо окрасить водоэмульсионной краской. За счет этого удастся в значительной степени сократить количество пыли в помещении.
Наличие туалета и умывальника, по сути, одна из самых важных зон и коммуникаций в жилом помещении. На первых парах проблему с туалетом можно решить путем приобретения биотуалета и размещение септика за пределами жилого модуля.
Наиболее примитивный вариант – канализационная труба выводится через нижний приточный вентиляционный канал. На функциональность воздуховодной шахты данное вмешательство никоим образом не отразится, а вот жилищные условия с нормально действующей канализацией будут только выигрывать.
Тут же возможно установить рукомойник, недорогую душевую кабинку. Самая маленькая по размерам модель душевой кабины великолепно впишется в углу дальней стенки гаражного бокса, напротив вытяжного вентиляционного канала. Это обеспечит своевременное отведение теплых и влажных воздушных масс из помещения.
В качестве отопительного прибора лучше всего подходит электроконвектор либо камин. Если же к гаражу не подведена система электропитания, а такое иногда бывает, то наиболее безопасным вариантом станет установка газового конвектора.
Чтобы такая система работала исправно, потребуется установить в стеновом перекрытии коаксиальную выводную-заборную трубу.
daniladunaev.ru
Дом из гаража – идея не новая, о чем свидетельствуют постройки на морском побережье. Это такие себе мини-коттеджи для жилья туристов и отдыхающих.
А вот возможно ли жить в подобном сооружении на протяжении длительного времени, законно ли это и как можно сделать из гаража полноценное жилое место, вы узнаете из этой публикации.
Существуют различные жизненные ситуации, заставляющие искать жилье в совершенно неожиданных местах. К примеру, переоборудование летних фазенд, или ставшая невероятно популярной в последние годы мода на устройство квартирных условий в обычном гаражном боксе.
Сразу же хотелось бы сказать, что проживание в гаражном помещении затруднительно в силу двух основных причин – из-за отсутствия солнечного света и достаточно небольшого по габаритам личного пространства.
Чтобы обеспечить поступление солнечного света внутрь данного специфического жилища, возникает необходимость в коренном переоборудовании кровли бокса. К примеру, можно оснастить крышу люком из монолитного поликарбоната.
Но вместе с тем, продолжительное проживание в гаражном помещении не всегда наполнено лишь только негативом. К примеру, многие автомобилисты не только живут в гараже, но и занимаются там автомобильным ремонтом, так сказать, совмещают приятное с полезным – и больше времени работе уделяют, и идти далеко не нужно после трудового рабочего дня.
Для большинства любителей тюнинга, танкистов, механиков подобная идея станет просто находкой, ведь такие люди днями напролет могут просиживать в гараже за любимым делом, а наличие зоны отдыха и проживания в непосредственной близости станет просто спасением.
Помимо того, проживание в переоборудованном гараже дает невидимые, но очень важные преимущества:
Можно ли жить в гараже по закону? Если есть желание переехать в переоборудованный под жилье гараж, то в первую очередь необходимо обратиться к законодательной базе. В силу того, что существует положение, гласящее, что проживать можно лишь только в помещение, соответствующее определенным нормам и стандартам.
В силу того, что гараж является предметом недвижимости, существует определенная процедура, позволяющая оформить проживание в нем на законных основаниях.
Чтобы проживание в переоборудованном гараже было зарегистрировано законом, в нем, в первую очередь, нужно организовать пригодные под жилье условия и потом оформить его как недвижимость, пригодную для регистрации и постоянного проживания.
B соответствии со статьей 23 ЖК РФ, подобного рода объекты переводятся в статус жилой недвижимости в ходе проверки и прохождения запрашиваемого дела органами местного самоуправления.
Властям потребуется предоставить следующий пакет документов:
Как понятно из вышесказанного, жить в гараже не так-то уж и страшно, а в некоторых ситуациях, даже и выгодно. Прежде чем приступать к переоборудованию гараж в дом своими руками, в первую очередь стоит определиться с планировкой и размещением жилых зон.
Большинство владельцев организовывают подвод всех систем жизнеобеспечения к близлежащим к гаражу хозяйственным постройкам. Существует несколько вариантов переоборудования гаражного помещение под жилье, но из них выделяют всего 2 наиболее оптимальных. И именно о них мы сейчас и поговорим.
Переоборудовать гараж под жилье – идея достаточно простая. Можно организовать вместо фасадного стенового перекрытия стеклянную перегородку. Также возможен вариант замены ворот раздвижной системой створок. Так удастся оставить и ворота и обеспечить прикрывание застекленной части переднего фасада гаража.
То есть, получиться так сказать дом с видом на террасу. Если же речь идет о замене стены стеклянной панелью, то конечным результатом станет просто большущее окно вместо ворот. Кому-то подобный вариант покажется чересчур открытый, поэтому многие останавливаются на переоборудовании ворот раздвижной системой створок.
Кроме того, прозрачные либо полупрозрачные стены можно использовать в качестве разделения помещения на зоны: душевая комната, гостиная и кухня. А всю заднюю сторону помещения можно переделать в спальню.
Безусловно, с подобным проектом не остается места под автомобиль, но вместе с тем получится уютный мини-домик, в котором можно будет проводить время в теплое время года. А если еще оборудовать гараж системой отопления, то он в нем можно будет спокойно жить круглый год.
Самый главный момент в процессе реализации подобной идеи – соблюдение всех норм, позволяющих осуществить полноценное переоборудование гаражного помещения под жилье.
Так, к примеру, имея помещение площадью в 40 , наиболее целесообразно разделить его на следующие зоны:
Задумавшись о переоборудовании гаража под жилье, можно отдать предпочтение варианту с надстройкой. Это позволит и сохранить место для хранения автомобиля, и обзавестись небольшой жилплощадью в непосредственной близости к гаражу.
Стены на втором этаже в данном случае делаются многофункциональными, чтобы была возможность разместить различного рода встраиваемую технику, ящики и кладовку.
Популярным интерьерным решением организации жилья в гараже станет устройство подвижных межзонных перегородок, благодаря которым будет возможность беспрепятственно перемещаться по помещению и менять планировку жилища вместе с его зонами.
Совет! Перед тем, как сделать из гаража жилое помещение, обязательно озадачьтесь вопросом устройства световых точек и розеток: необходимо заблаговременно продумать места расположения электроприборов и выключателей.
Переоборудовать таким образом гараж возможно из любого типа бокса, вне зависимости от его конфигурации и площади. Сегодня очень популярны варианты устройства мансард над гаражом. Более подробно об этом вы можете прочесть в одной из наших предыдущих публикаций
Чтобы в гаражном жилом боксе было комфортно жить, внутри помещения следует организовать следующие строительные и монтажные работы:
Делая жилой гараж, стоит особое внимание уделить вопросу утепления стен и крыши. Этот процесс, на самом деле, не имеет больших сложностей. Главное – правильно произвести расчет объема требуемого материала и обеспечить надежную защиту утеплителя пароизолятором.
А вот проблемы с устройством канализационной системы могут все-таки возникнуть, если в непосредственной близости с гаражом не проходит общественная канализационная сеть.
В данном случае придется закапывать септик рядом с гаражом и время от времени очищать его от отходов, в противном случае в скором времени появится неприятный запах, который будет просачиваться в жилое помещение.
Устроить водопровод и отопление, за неимением таких коммуникаций рядом с постройкой, возможно за счет выкапывания небольшой скважины. Достаточно будет установить небольшой котел и у вас будет и отопление в жилище, и горячая вода.
Еще одним вариантом обеспечения отопления в таком доме может стать печное отопление, работающее за счет возведения, как понятно, печки, функционирующей на дровах или прочем виде твердого топлива.
Что касается проведения света и интернета, то с этими коммуникации все гораздо проще, нежели с предыдущими. Так же легко можно устроить и вентиляционную систему: достаточным будет продолжить 2 вентиляционных канала в кровле.
Основной настоящей «проблемой» при переделке гаража в жилое помещение является возведение и отделка фундамента. Если жилое помещение будет возводиться над гаражом, то в этом случае потребуется полностью снести бокс и укрепить бетонное основание, сделав его более надежным и крепким.
В первую очередь безопасное для здоровья проживание в таком жилье характеризуется соответствующими условиями в помещении: оно должно быть сухим, с полноценной вентиляцией и обеспечением подходящих климатических условий.
И в данном случае имеющие в стенах трещины не так опасны для проживания, как протекающая либо провисающая кровля. Кроме того, при наличии зазоров между стеной и рамой ворот, условия безопасного проживания соблюдаться не будут.
Проживание в помещении с постоянно влажными стенами, наличием воды в подвале, способствующей развитию плесени, грибка, несет большую опасность для человека и его здоровья.
В процессе переоборудования помещения гаражного бокса под жилищные условия очень важно сделать его максимально комфортным и теплым.
Это требует выполнения небольших переделок и разрешения некоторых проблемных моментов:
Совет! Имеющиеся бетонные, кирпичные, цементные поверхности в гараже стоит обязательно забелить известью либо окрасить водоэмульсионной краской. За счет этого удастся в значительной степени сократить количество пыли в помещении.
Наличие туалета и умывальника, по сути, одна из самых важных зон и коммуникаций в жилом помещении. На первых парах проблему с туалетом можно решить путем приобретения биотуалета и размещение септика за пределами жилого модуля.
Наиболее примитивный вариант – канализационная труба выводится через нижний приточный вентиляционный канал. На функциональность воздуховодной шахты данное вмешательство никоим образом не отразится, а вот жилищные условия с нормально действующей канализацией будут только выигрывать.
Тут же возможно установить рукомойник, недорогую душевую кабинку. Самая маленькая по размерам модель душевой кабины великолепно впишется в углу дальней стенки гаражного бокса, напротив вытяжного вентиляционного канала. Это обеспечит своевременное отведение теплых и влажных воздушных масс из помещения.
В качестве отопительного прибора лучше всего подходит электроконвектор либо камин. Если же к гаражу не подведена система электропитания, а такое иногда бывает, то наиболее безопасным вариантом станет установка газового конвектора.
Чтобы такая система работала исправно, потребуется установить в стеновом перекрытии коаксиальную выводную-заборную трубу.
Мы с вами разобрались, как жить в гараже, и какие потребуются сделать перестройки в гаражном боксе, чтобы в нем было комфортно находиться. На самом деле, переоборудовать такое помещение под жилье не так-то уж и сложно, да с финансовой точки зрения – это достаточно экономичная идея.
Самое главное – организация всех необходимых условий полноценного и, что немаловажно, безопасного для здоровья проживания. Надеемся, предоставленная информация поможет вам в реализации задуманной идеи!
vseprogarazh.ru
Перестроить небольшой гараж в жилой дом – уже не простая задача. Но сделать этот дом при скромной площади еще и просторным – просто высший пилотаж.

Как сделать жилой дом из гаража? Главный секрет этого дома-гаража в том, что массу разных функциональных зон (спальню, гостиную, санузел, кабинет, а так же множество шкафов) архитектор вписал в один объем – 10-метровый параллелепипед. За счет чего в домике площадью в 41 кв. м осталось еще много свободного места для жизни. Хоть вечеринку с танцами устраивай!
Информация об объекте:
Место: Бордо, Франция
Метраж: 41 кв. м
Год: 2009-2010
Архитекторы: FABRE/deMARIEN architects
Фото: FABRE/deMARIEN architects
В Бордо схожая со многими крупными старыми городами ситуация: здесь есть центральные места, «элитность» которых на самом деле давно в прошлом, но тут по-прежнему престижно жить. В одном из таких районов находится проезд Буан (Passage Buhan). Уникальность его в том, что это частный проезд — он закрыт для посторонних, тут удивительно тихо, нет никого лишнего и у каждого домовладельца есть своя часть проезжей части. Особенность этого проезда в том, что все дома — это в прошлом конюшни, внизу стояли лошади, наверху жили конюхи. Впрочем, не совсем все, один из них в совсем недалеком прошлом был … автомобильным гаражом. Его-то и купил неожиданно для всех фотограф Джереми Бухгольц, который из-за работы разрывается между Парижем и Бордо и давно мечтал о постоянном «пристанище» в этом городе, но не тянул полноценный дом. Обзаведясь необычной жилплощадью, он обратился к знакомому архитектору Матьё де Марьену из FABRE/deMARIEN architects и тот придумал остроумный проект, как из гаража сделать дом — небольшой, но современный и удобный.

Если старые конюшни в проезде Буан и выглядят несколько романтично, то купленный Джереми Бухгольцем гараж был самым затрапезным: кривоватая постройка с черепичной крышей и распашными воротами из листового металла. А главное — очень мало света внутри, трудно себе представить, как этот гараж переделать в дом, и как Джереми вообще углядел в нем какой-то потенциал.

На смену железным воротам пришли раздвижные деревянные двери-ставни. Внешне довольно непримечательные, они исключительно функциональны: правую часть можно целиком сдвинуть в сторону, открыв патио, а можно просто отодвинуть небольшую створку слева, и откроется окно, ведущее в кухню.

Главное изменение, которое внес Матьё — это создание патио, открытого 12-метрового внутреннего дворика, который не просто замечательно уютное место для отдыха, но и предельно функционален: благодаря ему дом-гараж получает свет и естественную вентиляцию. С остальной частью дома патио соединено огромными застеклёнными створками, которые можно раздвигать.

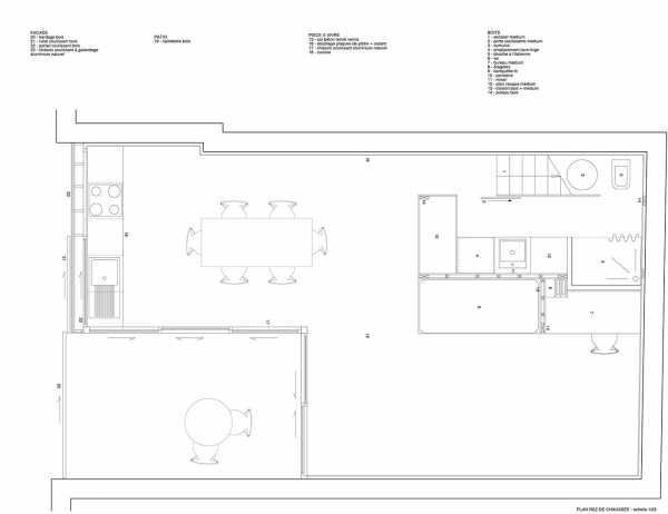
План. Здесь видно, какую значительную часть (целых 12 метров) Матьё решился отвести под патио. В остальном план довольно прост — кухня и пространство с большим многофункциональным мебельным блоком: вверху лофт-кровать, внутри — ванная и многое другое…

Разрез. Здесь видно, что благодаря скошенной кровле высота дома-гаража постепенно увеличивается от улицы к заднему торцу постройки, это позволило вписать туда «двухэтажный» мебельный блок.

К единственной внешней стене пристроена кухня. Современный минималистичный гарнитур выстроился вокруг окна. Благодаря застеклённому патио и белоснежной мебели вся эта часть дома буквально утопает в свете.

Все остальные функциональные зоны дома, не считая кухни, вписаны в большой 10-метровый параллелепипед, выполненный из дерева и мдф. Здесь поместилось абсолютно все, что нужно для комфорта. Во-первых, здесь расположено удобное рабочее место со столом, стереосистемой и массой закрытых полок, где фотограф хранит свои материалы.

Рядом с рабочим столом находится встроенная софа, на которой можно смотреть телевизор (вписанный в небольшую нишу напротив) и которая, при случае, играет роль гостевой кровати. Под диваном — выдвижные ящики, где Джереми хранит коллекцию CD дисков. Над диваном — полки, куда хозяин дома складывает свое профессиональное фотооборудование.

Со стороны кухни в параллелепипед встроены шкафы — от хозяйственного, где хранятся пылесос и инструменты, до гардероба. За ними — лесенка, ведущая наверх, к спальному месту. Рядом с лесенкой почти неприметный вход в санузел.

Наверху — вполне полноценное спальное место: не просто матрас на полке, как это часто бывает со спальнями-лофтами, а нормальная кровать. Внутри бортиков встроены полочки для одежды: белья и футболок. Бортики «спальни» Джереми использует как полки, а встроенные мансардные окна дают прекрасное верхнее освещение и открывают романтичный вид на небо, прямо из кровати. Кроме того, создание мансардного окна позволило немного поднять высоту в месте оконного проема, так что тут можно встать в полный рост (там, где нет окна, приходится пригибаться). Эта хитрость связана с тем, что менять высоту крыши не разрешали правила исторической застройки центра Бордо.

Санузел расположен внутри многофункционального объема. Он довольно компактный, с душевой кабиной, но здесь есть абсолютно все, включая огромное зеркало, стиральную машину и даже спрятанный отопительный котел.
Ролик с архитектором и вальяжным владельцем:
www.4living.ru
Французский фотограф Джереми Бухгольц, не имея денег на покупку квартиры в Бордо, своем городе, нашёл оригинальный выход. Он купил заброшенный гараж и переделал его в жильё. Теперь он имеет квартиру площадью 41 квадратный метр в центре города. (9 фотографий)
См. также: Жизнь в туалете, Квартира на чердаке, Жизнь в канализации

1/ Гараж, переделанный в квартиру

2/ Гараж, переделанный в квартиру

3/ Гараж, переделанный в квартиру

4/ Гараж, переделанный в квартиру

5/ Гараж, переделанный в квартиру

6/ Гараж, переделанный в квартиру

7/ Гараж, переделанный в квартиру

8/ Гараж, переделанный в квартиру

9/ Гараж, переделанный в квартиру
Источник: uzoranet
fototelegraf.ru

Как сделать из гаража дом
Как из гаража сделать дом? Такой вопрос интересует многих его владельцев. Причин пожить в гараже существует не мало.
Это может быть огромное расстояние от жилья до гаража, где стоит машина, дороговизна арендованного жилья, нежелательное проживание в черте города, отсутствие самого жилья и многое другое. Может ли гаражная жизнь быть комфортной, расскажет эта статья.
Пристроить к гаражу или переделать его в жилое помещение является не простой задачей.
Существует несколько вариантов жилого гаража:
Во всех случаях главное условие — создание комфорта для проживания в гараже в любое время года.
Прежде чем приступить к переоборудованию такого строения, каждый задает себе вопрос можно ли жить в гараже и какие требования к нему должны предъявляться, чтобы они удовлетворяли строительными нормами, правилами и соответствовали постановлениям местных органов власти.
Такие помещения можно переоборудовать:
Совет: Следует иметь ввиду, что здесь должно быть тепло зимой и не жарко летом. Перед началом реконструкции помещения нужно проконсультироваться со специалистами.
Переделывая существующий гараж в помещение для жилья необходимо, чтобы:
Совет: Переделка своими руками гаража под жилое помещение начинается с укладки нового покрытия на пол.
Это можно сделать несколькими вариантами. Наиболее популярные из них:
Обязательно делается его гидроизоляция.
Стандартные створки ворот могут отлично сочетаться с интерьером внутри помещения и превосходно смотреться при этом снаружи здания.
Ворота можно поменять на большие панорамные окна, как на фото. В этом случае в помещении будут огромные прозрачные двери, но при условии, что они будут создавать общий эстетический образ здания.

Прозрачные двери в жилом помещении гаража
Преобразование строения с применением остекления на всю стену не оставит никаких напоминаний о гаражном первоначальном образе.

Шикарные апартаменты из большого бывшего гаража
Встроенный газовый камин добавляет эффект интерьеру. А ванная комната, примыкающая к спальне, делает помещение привлекательным для гостей и домочадцев.
Такое капитальное строение достаточно прочное, надежное и долговечное. Кровля изготавливается двускатной или односкатной, на которой практически не задерживаются осадки.

Жилая пристройка к гаражу
Строительные работы выполняется в такой последовательности:
Получается ленточный жесткий фундамент. Стены лучше возводить из пеноблоков или собрать на каркасе.
При использовании пеноблоков:
Совет: Перед установкой ворот или окон в стене над проемом следует устанавливать железобетонную балку или металлические уголки.
Каркасные стены, при небольшом весе, не требуют заливки массивного фундамента, а сам процесс строительства выполняется гораздо быстрее.
При возведении стен из каркаса инструкция следующая:
Конструкция кровли состоит из таких элементов:
Для покрытия конструкции кровли применяются современные, легкие материалы. Такие как:
Можно ли прописаться в гараже? Такой вопрос задают желающие снять гаражное помещение для жилья. Разрешение на регистрацию прописки в гараже можно получить при условии признания его жилым помещением.
Такой статус строению присваивается, если оно соответствует всем санитарно-эпидемиологическим нормам. Здесь должны быть все инженерные системы, согласованные с коммунальными службами, которые дали разрешение на проживание в гараже людей.
После этого в местные органы власти предоставляется пакет документов, куда входят:
Решение принимается в течение десяти дней. В случае нестыковок человек имеете право обжаловать решение в судебном порядке. Если гараж не оформлен как жилое помещение, в регистрации будет отказано на вполне законном основании.
Переделка гаража в жилое помещение — сравнительно новый тренд в гаражных хозяйствах, но за короткий срок он приобрел большую популярность, особенно в крупных городах и в курортных зонах, где цена каждого метра жилой площади достаточно высокая. Какие существую варианты перестройки гаража под жилье, как это правильно сделать подробно показывает видео.
1pogarazham.ru