В Новокосино собираются строить гостиницу по адресу ул. Новокосинская вл. 18 и это правда.
Для мигрантов? Официально такой информации нет.
В этом посте я расскажу о том, как обстоит ситуация на самом деле и что мы будем делать.
Вопрос о строительстве данной гостиницы рассматривался на первом реально рабочем заседании Совета депутатов сразу после выборов.
Депутаты ещё не были знакомы, работа не была налажена, проект предварительно не обсуждался на профильной комиссии, но решение требовали принять.
Аргументы, которые приводили ЗА:


МОИ АРГУМЕНТЫ ПРОТИВ:
В результате я единственный из депутатов не поддержал строительство данного объекта на голосовании, но решение было принято и проект был направлен на публичные слушания.
C результатами Вы можете ознакомиться по ссылкеНедавно началась подготовка к стройке и жители объединились в интернете, чтобы противостоять ей.
Меня это нереально радует т.к. до этого момента я не ощущал никакой поддержки моего протеста стройке и начал уже сомневаться в том, что моя позиция на том заседании была верной и соответствовала мнению жителей Новокосино.
В интернете создана группа — http://vk.com/netstroike , в которой происходит координация актива против стройки.
Теперь перейдём к фактам.
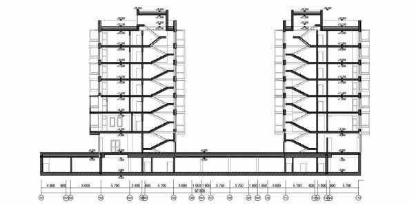
Вот схема того, что планируют строить сейчас (высота до 7 этажей + 1 подземный):

Моя позиция остаётся неизменной – строительство данной гостиницы не отвечает интересам жителей района и не нужно вообще.
Сейчас находимся в сложной ситуации т.к. проект коммерческий и очень выгодный, а все необходимые по закону процедуры были соблюдены. То есть строительство гостиницы законно. На данный момент выясняем, почему проект был изменен. Все необходимые запросы сделаны и вопросы заданы.
Необходимо выработать аргументированную позицию и системно защищать её от лица собственников жилья.
Впереди выборы в МосГорДуму и разжигаемая паника очень выгодна политическим спекулянтам, которые хотят митинговать, критиковать и разжигать протестные настроения.
Нам с вами это не нужно – мы хотим выйти на реальный диалог с властью и решить проблему в одном из двух возможных вариантов:
Повторюсь:
Сейчас отправляюсь на встречу с главой управы и главой муниципального округа по данному вопросу, уточню все подробности и позицию управы, после чего и мы сможем сформировать план единых действий жителей.
Необходимо понимать, что решение данного вопроса находится существенно выше уровня управы района и она очень важный для нас партнёр. Если управа будет на нашей стороне, то это существенно поможет – именно совместными действиями мы добились отмены строительства гаража, против которого также протестовали жители.
Нам (жителям) сейчас во власти нужны не враги, а союзники. Тогда всё получится.
Есть договорённость с телеканалом Москва 24 – в воскресенье (завтра) они хотят взять интервью у жителей и приедут на место стройки в 12.00, приходите. Там же и обсудим ситуацию оффлайн
Сегодня они пытаются взять комментарий по данному вопросу у зам. Префекта по строительству.
Начнём с этого, подробности чуть позже.
Кто готов к реальным действиям – добавляйтесь в друзья http://vk.com/igorboykoМой телефон 8 985 107 77 70
twitter: @iboyko
Всё получится))
iboyko.livejournal.com


novokosino.info
novokosino.info
Этажность | 7эт. |
Площадь застройки | 2110 м2 |
Общая площадь здания, вт.ч.: | 15790 м2 |
Строительный объем | 78680 м3 |
Апартаменты | 169шт. (48м.м) |
Административные помещения | 1325м2 (12м.м) |
Количество м/мест | 68м/м + открытая автостоянка |
Высота здания | 28,35м |
*Апартаменты — это новый формат жилья, который широко принят на Западе и сегодня постепенно становится доступным и в Москве. Апартаменты — это недвижимость, которую можно купить и оформить на нее собственность, продать, подарить, завещать, арендовать или сдать в аренду.
Единственное отличие апартаментов от квартир состоит в том, что эти помещения, по сути предназначенные для проживания, расположены в зданиях, которые имеют юридический статус коммерческого объекта.
Апартаменты в многофункциональных комплексах используются как квартиры для постоянного проживания.




Выявленные нарушения в ходе строительства на ул. Новокосинской, вл. 18
=»»>novokosino.mos.ru
Строительство гостиничного комплекса в Новокосино — обычный инвесторский проект, гостиницу для мигрантов здесь никто никогда не планировал, сказал заместитель мэра Москвы по вопросам градостроительной политики и строительства Марат Хуснуллин в четверг, 23 января, на заседании Коллегии Стройкомплекса Москвы.
По его словам, строительство этой гостиницы на территории Восточного административного округа (ВАО) выполняется в рамках отраслевой схемы размещения гостиниц на территории города, утвержденной в конце 2012 года.
«Мы все прекрасно понимаем, что Москве необходимо развитие сети гостиниц, и не только в центре столицы, но и на периферии», — сказал заместитель мэра.
Напомним, что сегодня в Москве обеспеченность гостиничными номерами составляет 7,5 места на 1000 жителей. Для сравнения: в Берлине этот показатель достигает 11 мест на 1000 человек. Выйти на показатели германской столицы разработчики отраслевой схемы размещения гостиниц предполагают уже к 2015 году.
Согласно данной схеме, до 2025 года в городе планируется построить 364 гостиницы на 167,9 тыс. мест. Возводить отели городское правительство намеревается в срединных и периферийных зонах Москвы, а также на новых территориях для повышения качества городской среды.
В центральной части столицы гостиницы появятся в основном за счет реконструкции отселенных жилых домов, реставрации зданий, которые относятся к категории памятников, и в составе строящихся многофункциональных комплексов.
Гостиничные комплексы планируется размещать возле объектов спорта, культуры, выставочных и рекреационных комплексов, административных учреждений, которые притягивают большое количество туристов.
Строительство будет осуществляться в две очереди. С 2012 по 2016 год планируется построить 154 гостиницы на 58,4 тыс. мест (более 40 из них уже строится).
В рамках второй очереди — с 2017 по 2025 год — планируется возвести 210 гостиниц на 109,5 тыс. человек. Из них на присоединенных территориях в составе капитальных объектов будет введено 7 тыс. гостиничных номеров на 14,1 тыс. мест.
Евгений Осипов, собственный корреспондент
stroi.mos.ru
Сдача в 4 кв. 2019 · монолитный
4 мин. на транспортеЖилой комплекс возводится на крупной транспортной артерии – улице Вешняковской, во второй линии. Среди новостроек Восточного округа здание выделяется удачным расположением вблизи МКАД – расстояние до трассы по прямой не превышает 1 километр. К услугам автомобилистов удобные выезды на кольцевую магистраль – по улицам Молдагуловой и Кетчерской. Кроме того, поблизости от жилого комплекса проходит Рязанский проспект (менее 3 километров). Квартиры в новых домах — ЖК «Счастье в Кусково» — строящиеся новостройки
Контакты застройщика
Сдача в 2019—2020, есть сданные · монолитно-кирпичный
11 мин. на транспортеЖилой квартал «Новоград Павлино» – это полноценный город, в состав которого входит тридцать пять монолитно-кирпичных корпусов высотой от 17 до 22 этажей, а также многочисленные инфраструктурные объекты. Квартира в новостройке — ЖК «Новоград Павлино» — строящиеся
Контакты застройщика
Сдача в 2019—2023, есть сданные · монолитный
16 мин. на транспортеЖилой комплекс комфорт-класса «Столичный» (бывшее название – ЖК «Саввино») строится компанией «Главстрой» на участке площадью в 57 га в микрорайоне Саввино Северное города Балашиха (до 2015 года местность относилась к городу Железнодорожный, позднее он был присоединен к Балашихе). Реализуется данный проект в несколько очередей. Транспортная доступность ЖК «Столичный» зависит от улиц Калинина, Луговая и Пионерская. Через 2 км. от комплекса есть выезд на Носовихинское шоссе. Также добраться до Москвы удобно и по железной дороге: на электричке до Курского вокзала от ж/д станции Железнодорожная примерно 33 минуты. Продажа квартир в ЖК «Столичный» — строящиеся новостройки
Контакты застройщика
Сдача в 2020—2021, есть сданные · монолитно-кирпичный
25 мин. на транспортеДля создания комплекса застройщик выбрал место в лесной зоне, в окружении водоемов. Экология района благоприятна в силу отсутствия здесь промышленных производств и благодаря близости водохранилищ. От МКАД до новостройки всего 17 километров, доехать в Москву можно по Носовихинскому или Горьковскому шоссе.Общественным транспортом (его остановки находятся недалеко от домов комплекса) можно добраться до метро «Новокосино» и «Новогиреево», но нужно будет сделать пересадку, а дорога займет в общей сложности около сорока пяти минут. Альтернативой может стать поездка на э Квартиры от застройщиков в ЖК «Новое Бисерово 2» — строящиеся новостройки
Сдача в 3 кв. 2019, есть сданные · монолитно-кирпичный
12 мин. на транспортеЖилой комплекс «Квартал Центральный, 31-1» – это двухсекционный 23-этажный монолитно-кирпичный дом эконом-класса с красно-белым фасадом и двухэтажное здание детской поликлиники.Дом находится в микрорайоне Ольгино, в бывшем городе Железнодорожный (который с 2015 года является частью города Балашиха), примерно в девяти километрах от МКАД и станции метро «Новокосино», рядом с Носовихинским шоссе.В нескольких сотнях метров от «Квартала Центральный, 31-1» располагается станция «Железнодорожная», от которой на скоростных экспресс-поездах можно за Квартиры в новых домах — ЖК «Квартал Центральный» — строящиеся новостройки
Сдача в 4 кв. 2019 · монолитно-кирпичный
6 мин. на транспортеЖилой комплекс «Квартал Европа» возводится в городе Балашиха МО, на улице Школьной – всего в 5 км от МКАД. Поэтому на своем автомобиле добраться до комплекса совсем несложно – несколько минут по Носовихинскому шоссе. От метро «Новокосино» — тоже 5 минут на маршрутках №№ 100, 111, 142, 487, 582, 585. От Курского вокзала ходит электричка до станции Салтыковка, до которой всего 20 минут, а от нее до ЖК – 15 минут пешком.
www.cian.ru
Вот уже 14 лет я живу в районе Новокосино, находящийся в Восточном административном округе, но честно говоря, никогда не задумывалась о том, что представляет собой этот район, о его жителях и чем он отличается от других районов. Прочитав всё, что можно и нельзя, я изучила свой район досконально. Но от одного чтения толку мало, поэтому я прошла его от начала до конца.
Мой район достаточно маленький, полностью располагающийся за пределами Московской кольцевой автомобильной дороги. Когда я гуляла по одной из улиц, я обратила внимание на три многоэтажки, объединённых между собой. Я сразу вспомнила о том, как в 2012 году началось строительство этой гостиницы. Все жители моего района боролись за то, чтобы на данной территории построили спортивный комплекс, кинотеатр или хотя бы детскую площадку. Но наших усилий, к сожалению, не хватило. В ноябре 2012 года информационный стенд, установленный у огороженной территории сообщал, что на улице Новокосинская, 18 строится «многофункциональный гостиничный комплекс с подземной автостоянкой (апарт-отель)». Стройка началась внезапно, несмотря на то, что еще весной того же года на общественных слушаниях жители высказались против этого строительства. Газета «Совершенно секретно» писала в ноябре, что люди больше всего возмущены нарушениями правил безопасности на стройплощадке, где строительная техника создает угрозу для детей, а грузовики заезжают прямо на пешеходный переход. Но больше всего жителей района возмущало именно расположение гостиницы, ведь для стройки был выбран участок возле дороги, где размещалась стоянка для автомобилей в центре спального района, недалеко от новой станции метро. С самого начала строительства началась битва не на жизнь, а на смерть. Жители района устраивали одиночные пикеты, блокировали проезд строительной техники, печатали и раздавали листовки, проводили митинги, собирали подписи, подавали в суд, но всё было безуспешно. Единственным представителем власти, который поддержал жителей района, оказался депутат совета депутатов муниципального округа Новокосино Игорь Бойко. В своем ЖЖ депутат писал: « Нам нужна не революция в Новокосино, а диалог власти и собственников жилья в урегулировании ситуации».

24 ноября, в День Матери, жители района провели акцию «Игрушки против стройки». Любой желающий мог принести из дома мягкие игрушки и прикрепить их к ограждению строительной площадки. Моя семья и многие знакомые тоже участвовали. Помимо мягких игрушек, жители моего района приносили воздушные шарики, ленточки и плакаты с просьбой остановить стройку. Организаторы акции надеялись, что протест жителей будет услышан властями. «Народ всегда объединяли проблемы, и сейчас кажется, что такое количество народа были всегда знакомы. Все пришли с замечательным настроением и все помогали друг другу, не как жители одного района, а как одна большая семья!», писала журналист «Моего региона» Светлана Морозова .
А 28 декабря, не смотря на занятость перед праздником, более 800 москвичей собрались на митинг против строительства гостиницы. Во время мероприятия все желающие оставили свои подписи под более чем 500 обращениями во всевозможные инстанции. Но строительство продолжилось.
За эти три года страсти поутихли. Жители поняли, что их мнение никому не интересно, но продолжили общаться между собой, устраивать всевозможные акции и праздники.
А совсем недавно, а именно 26 августа 2015 года, в недостроенной гостинице вспыхнул пожар. В разгар рабочего дня, в 11 часов утра, огонь охватил с четвёртого по седьмой этажи строящегося здания. Пожарно-спасательные подразделения установили, что загорелись строительные материалы. Жители близстоящих домов, отмывая свои окна от сажы, в тайне мечтали о том, чтобы гостиница сгорела дотла. Клубы чёрного дыма были видны даже в соседних районах.
Сейчас гостиница продолжает расти на глазах. Все мы поняли, что даже такое большое количество человек не может повлиять на мнение и решение властей.
Но благодаря этой истории весь наш район сдружился, стал более сплоченным и подготовленным к любой общественной проблеме. Все люди готовы были бороться за общее дело.
Жаль только, что власти нас слушают, но не слышат.
journs.ru