17.08.2016
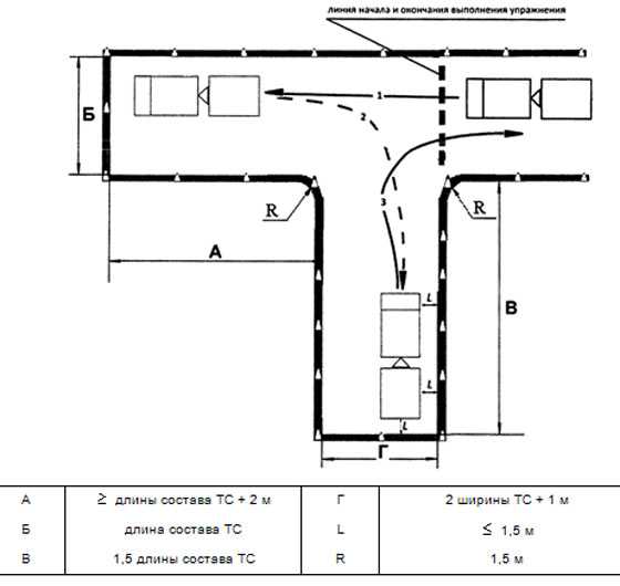
Упражнение N 9 «Сцепление и расцепление или расцепление и повторное сцепление прицепа с тягачом».
При выполнении упражнения «Сцепление и расцепление или расцепление и повторное сцепление прицепа с тягачом» кандидат в водители должен иметь рабочую одежду и рукавицы.
Упражнение состоит из 2-х элементов: «Сцепление прицепа с тягачом» и «Расцепление прицепа с тягачом».
«Сцепление прицепа с тягачом».

Перед началом выполнения элемента упражнения тягач должен быть расцеплен с прицепом.
С целью соблюдения безопасности при выполнении элемента упражнения допускается в соответствии с волеизъявлением кандидата в водители помощь других лиц при подъезде тягача задним ходом к прицепу и производстве сцепки.
Кандидат в водители:
«Расцепление прицепа с тягачом».

Перед началом выполнения упражнения тягач должен быть сцеплен с прицепом.
Кандидат в водители:

Кандидат в водители:

Кандидат в водители:

Кандидат в водители:
Экзаменационные билеты ПДД РФ:
Статьи по теме:
avtomirrf.ru

Здесь, вы можете подготовиться к теоретическому экзамену ГИБДД на право управления транспортным средством категрии «C» и «D». Решите экзаменационные билеты ПДД 2019 категорий «C» и «D», с комментариями.
Применяются на государственном экзамене в ГИБДД с 25 июля 2019 г. Количество билетов — 40. В каждом билете 20 вопросов. Для успешной сдачи экзамена допускается совершить не более 2 ошибок. За каждую ошибку дается пять дополнительных вопросов из такого же тематического блока. Время ответа на один билет — 20 минут. Если у вас возникают трудности с решением экзаменационных билетов, Вы можете задать вопрос и получить ответ от опытного преподавателя в комментариях.
Какое удостоверение достаточно иметь водителю, управляющему легковым автомобилем с прицепом, имеющим разрешенную максимальную массу до 750 кг?
Как и в настоящем экзамене, вопросы в наших билетах оформлены в виде теста. Для каждого вопроса предлагается несколько вариантов ответа.
При необходимости вопросы снабжаются схемами и фотографиями. Для чего нужен случайный билет по ПДД Таким образом, случайный билет позволяет:
Преимущества прохождения проверки онлайн Пройти тест со случайным билетом онлайн значительно проще, чем приобретать брошюры или печатать билеты самостоятельно.
Альтернативой может быть самостоятельное обучение. Но учиться ездить с прицепом придется так, чтобы этого не видели сотрудники ГИБДД, которые вправе оштрафовать водителя за столь серьезное нарушение ПДД. Со всеми документами приходите в МРЭО ГИБДД по месту постоянной или временной регистрации.
Разрешено ли перевозить людей в прицепе-даче? Разрешено Разрешено при наличии мест для сидения пассажиров Запрещено Перевозка людей в прицепе-даче не разрешается, т.
е. запрещается при любых условиях. (Пункт 22.8 ПДД.) Правильный ответ — «Запрещено» Темы вопроса (прорешайте их, если у Вас возникли трудности в этом вопросе): Ваш результат Обсуждение (8) Добавить сообщение Да куча сайтов по ПДД с непонятно как обновляемым контентом это отдельное зло.
Теперь в ГИБДД можно сдавать только город 29.04.2019 21:50 Новый закон об ОСАГО: ремонт вместо денег 26.04.2019 22:00 Инспекторам ГИБДД вернули ручные радары 17.04.2019 22:10 Готовятся изменения в ПДД для мотоциклистов 10.04.2019 10:30 Автошколам могут дать право принимать водительские экзамены вместо ГИБДД Новые комментарии на сайте Но в этом есть свои плюсы, ваш сайт виден в поисковой выдаче яндекса, гугла и других поисковых систем и с ним все отлично. т.
Водительская категория «Е» с недавних пор больше не существует.
Я хочу предложить вам эту услугу, далее по пунктам с ремарками.
Ее заменили категории «ВЕ», «СЕ», «С1Е», «DЕ» и «D1Е». Таким образом, желающий получить категорию «Е» должен иметь годовой водительский стаж по категориям «В», «С», или «D». Также претендент на категорию «Е» не должен иметь медицинских противопоказаний на вождение транспортных средств данной категории, о чем нужно предоставить медсправку. И так, имея в водительских правах категорию «В», «С», или «D», вы имеете право водить транспортные средства этих категорий, в том числе сцепленные с прицепами, не превышающими массой 750кг.
Открытая категория «ВЕ» позволит вам управлять тягачами категории «В», сцепленными с прицепами, масса которых более 750 кг, но не больше массы тягача без нагрузки.Категории вопросов Оставить отзыв Вы можете оставить отзыв о нас в системах Яндекс и Google
Лет рубрике Человек задали свои вопросы Отметок мне нравится У меня были права категории ВСЕ. Обменял на новые, стали В,В1,С,С1,СЕ,С1Е,М.
Я не смогу значит ездить на легковом авто с прицепом? Вы можете управлять автомобилем с прицепом до 750 кг, с большей массой — нет. Инспектор сам не понимает, что говорит.

Раздел 1 «Общие положения» определяет основные понятия и термины, которые помогут нам понять, какие пункты правил касаются эксплуатации автомобиля с прицепом.
Категория «Е» у Вас должна быть открыта ко всем категориям, являющимися тягачом. Ознакомьтесь со статьёй нашего эксперта. Есть категория Д (автобус) хочу открыть Е (прицеп) нужно ли будет сдавать ПДД или только вхождение. На сегодня на любую категорию ТС необходимо сдавать ПДД и вождение.
1.2. В Правилах используются следующие основные понятия и термины: Автопоезд — механическое транспортное средство, сцепленное с прицепом (прицепами). Прицеп — транспортное средство, не оборудованное двигателем и предназначенное для движения в составе с механическим транспортным средством. Термин распространяется также на полуприцепы и прицепы-роспуски. Механическое транспортное средство — транспортное средство, приводимое в движение двигателем.
Термин распространяется также на любые тракторы и самоходные машины.Транспортное средство — устройство, предназначенное для перевозки по дорогам людей, грузов или оборудования, установленного на нем.
Сегодня мы поговорим о том, что такое категория Е, как пройти обучение вождению на данную категорию и какие экзамены следует сдать. Как известно, в сфере «автомобильного» образования появились некоторые изменения и новшества. Они не обошли стороной и категорию Е.

Новые подкатегории Автоинструкторы напоминают, что с 1 января прошлого года категория Е исчезла как отдельно взятая. Зато появились три подкатегории:
Выбираем автошколу Если вы хотите получить категорию Е (впрочем, как и любую другую), в первую очередь обратите внимание на выбор автошколы.
Основные условия Для буксировки тяжелых прицепов легковым автомобилем оптимальный вариант — двигатель дизельный.
Он дает большой крутящий момент, что особенно важно при подъеме в гору.
Узнаем термины, определяющие весовые характеристики состава ТС категории Е.
pravo-38.ru
Добрый день, уважаемый читатель.
В этой статье будут рассмотрены экзаменационные билеты ПДД 2017 года, т.е. речь пойдет о подготовке к теоретическому экзамену на право управления транспортными средствами.
Кроме того, в этой статье будут даны советы по сдаче теоретической части экзамена в ГИБДД, а также рассмотрены некоторые особенности самого процесса сдачи.
Естественно, также будут приведены и сами официальные экзаменационные билеты ПДД в формате pdf, которые Вы можете использовать для подготовки к теоретическому экзамену в режиме онлайн, либо скачать их, распечатать на принтере и готовиться к экзамену в спокойной домашней обстановке.
В настоящее время в Российской Федерации для приема квалификационных экзаменов на право управления транспортными средствами применяются 2 комплекта билетов:
Экзаменационные билеты категории ABM применяются в том случае, если водитель желает получить право управления либо транспортного средства категории A (мотоцикл), либо транспортного средства категории B (автомобиль), либо транспортного средства категории М (мопед), либо право управления одновременно всеми перечисленными транспортными средствами.
Примечение: Подробнее про категории транспортных средств Вы можете узнать в статье «Категории водительских прав».
Обратите внимание, если Вы сдаете на категорию A, B или М, Вам не требуется изучать экзаменационные билеты ПДД категорий CD.
Решать билеты ПДД ABM онлайн
Экзаменационные билеты категории CD применяются при получении либо водительского удостоверения категории C (грузовые автомобили с разрешенной максимальной массой более 3,5 тонн), либо категории BC (легковые автомобили и любые грузовики), либо категории D (автобусы).
Следует отметить, что при обучении на категорию BC Вам понадобятся только экзаменационные билеты ПДД категории CD, т.к. теоретический экзамен в ГИБДД сдается именно по этим билетам.
Решать билеты ПДД CD онлайн
Для многих водителей основная задача теоретического обучения в автошколе — выучить наизусть экзаменационные билеты ПДД 2017. В принципе, это вполне логично, однако не следует забывать, что билеты ГИБДД предназначены лишь для сдачи теоретического экзамена. При самостоятельном управлении автомобилем в случае спорной ситуации (ДТП или общение с ГИБДД) Вы не сможете использовать текст экзаменационных билетов, т.к. билеты не являются нормативным правовым документом.
Так что одновременно с решением билетов ГИБДД, занимайтесь и изучение правил дорожного движения. Именно ПДД являются нормативной базой всего дорожного движения и именно они останутся вместе с Вами после окончания автошколы.
Для подготовки к экзамену можно использовать либо печатную версию экзаменационных билетов ГИБДД, либо решать электронную версию тех же самых билетов в режиме онлайн.
Печатную версию билетов можно либо купить в ближайшем к Вашему дому книжном магазине.
Что касается экзаменационных билетов ПДД 2017 для самостоятельного изучения, то их Вы можете получить, скачав следующий pdf-файл.
Скачать билеты ABM в формате pdf
Скачать билеты CD в формате pdf
Каждый из файлов содержит тексты действующих билетов в редакции от 1 сентября 2016 года.
Обратите внимание, что файлы содержат более 400 страниц, поэтому печатать экзаменационные билеты на собственном принтере экономически нецелесообразно. А вот использовать этот документ для решения билетов с экрана компьютера или планшета можно вполне.
Несколько картинок, позволяющих оценить качество документов (для увеличения нажмите на изображение):


Подготовка к сдаче теоретического экзамена в целом состоит в том, чтобы запомнить ответы на экзаменационные билеты ПДД. Естественно, следует помнить, что в билетах есть несколько каверзных вопросов, на которые не всегда можно однозначно ответить. Все спорные вопросы рассмотрены в статьях:
Итак, при подготовке к экзамену необходимо выучить ответы на все билеты ГИБДД. На самом деле сделать это не так сложно, как кажется на первый взгляд. Хотя билеты и содержат 800 вопросов, многие из вопросов снабжены картинками. Кроме того, к каждому вопросу дается несколько вариантов ответов.
Обычно кандидату в водители хватает 3-5 раз полного решения билетов, чтобы запомнить ответы на основную массу вопросов. Если обучение дается с трудом, то может понадобиться до 10 раз. Тем не менее при тщательном подходе к делу на практике выучить ответы на все билеты можно за 2-3 дня.
Хочу заметить, что при сдаче экзамена в ГИБДД вопросы в билетах будут идти в другом порядке, однако сами вопросы будут совпадать с теми, которые есть в книжке. Т.е. учить нужно не номера правильных ответов по таблице, а именно ответы на конкретные теоретические вопросы.
Еще один подводный камень, с которым можно столкнуться при подготовке к теоретическому экзамену в ГИБДД — частое обновление правил дорожного движения. На практике, если происходит обновление ПДД, то происходит и обновление соответствующих экзаменационных билетов. Т.е. если Вы учились по одним правилам, а экзамен в ГИБДД предстоит сдавать по правилам другим, то рекомендуется решить обновленные экзаменационные билеты.
Последнюю версию экзаменационных билетов ПДД Вы всегда можете найти на этой странице (выше по тексту).
Итак, подготовка к теоретической части экзамена в ГИБДД заключается в «зубрежке» экзаменационных билетов.
Рекомендую в последний вечер перед экзаменом в ГИБДД провести «контрольное» решение билетов, чтобы освежить собственные знания.
Теоретическая часть квалификационного экзамена у большинства водителей не вызывает затруднений и по статистике является самой легкой.
Рассмотрим несколько простых советов, которые помогут Вам успешно сдать теорию:
1. Не смотрите на монитор соседнего компьютера. Даже если за ним сидит Ваш лучший друг или любимая девушка. Любой кандидат в водители и сам в состоянии справиться с предложенным билетом, а Ваш чрезмерный интерес может навредить обоим (с экзамена удалят и Вас, и Вашего товарища).
2. Не торопитесь с решением билетов. Естественно, за время самостоятельного решения билетов Вы научились решать билеты намного быстрее чем за 20 минут, однако сотрудникам ГИБДД знать этого не обязательно.
Поверьте, никто и никогда не поинтересуется тем, за сколько времени Вы решили экзаменационный билет в ГИБДД.
А вот излишняя торопливость может привести к неудовлетворительному результату экзамена.
Итак, читайте вопросы внимательно, по 2-3 раза, а лишь затем выбирайте правильный вариант ответа.
3. Решайте вопросы последовательно. В настоящее время все отделения ГИБДД оборудованы похожими системами приема экзаменов, и переход между вопросами там реализован не самым понятным способом.
Если будете пытаться переходить между вопросами, то скорее всего запутаетесь и не сможете довести экзамен до победного финиша. Поэтому решайте все вопросы в порядке их появления.
4. Не опаздывайте на
motorsmarine.ru
В один прекрасный день дальнобойщик перевозил груз, он до склада добрался нормально. Он должен был заехать задним ходом в ворота. Вот такой интересный случай. И что тут такого? Дело в том, что ему всячески помогали люди со склада, показывая ему, как лучше заехать, но, к сожалению, у него ничего не вышло. Заехать пытался он не один раз. Из-за этого, они вызвали специалиста, и он моментально сделал, то, что предыдущему водителю, так и не удалось. Не думайте, эту историю мы не придумали, такое было на самом деле. Не любой автолюбитель умеющий управлять крупногабаритной машиной, будет считаться асом. Когда-то редкостью было работать водителем. Можно вспомнить даже те времена, когда была война: машина забитая эвакуированными и ранеными людьми оказывается под обстрелом. Водитель скончался, и нет ни одного человека, который бы мог его заменить и сесть за рулевое колесо.
При отказе надо сослаться на документ МВД 27.09.2007 13/5-184 «Указание руководителя управления ГИБДД о порядке замены удостоверений с разрешенной категорией Е». Требование сотрудников ГИБДД обязательно сдать экзамен по вождению автомобиля с прицепом –неправомерно.
Срок действия удостоверения пока остался прежним — десять лет. Если были права с индексом В, чтобы получить новые с дополненной категорией Е, необходимо пройти обучение.
Обучение проводится в специальных автошколах по специальным программам. Кроме того, водительский стаж должен быть не менее 1 года.
Надо иметь в виду, что по постановлению №1396 от 1999 года водительский стаж считается с даты выдачи водительского удостоверения. Обучение на категорию Е проходить необязательно, если предполагается управление автомобилем с легким прицепом.
И что же? Даже когда ему помогали работники склада, указывая, как ему заезжать, у него ничего не получалось. Пытался он заехать раз, наверное, десять. Пришлось вызывать профессионала, который сразу же своего добился.
Это не просто выдуманная история, а реальный отрывок из жизни. Не всякий, кто умеет сидеть за рулём, даже огромного транспортного средства, считается профи.
В своё время профессия водитель считалась уникальной. Привычная картина с эпохи войны: автомобиль с полным кузовом эвакуированных и раненых людей попадает под бомбёжку.
Погибает водитель, и не находится ни одного, кто мог бы сесть за руль. Сегодня такая ситуация и на ум не придёт. Но раньше это действительно так было.
И после войны профессия водитель считалась очень престижной. Ежегодно на курсах обучалось много молодых парней. Организовывались специальные занятия и при ДОСААФе.
При движении по городу нужно будет продемонстрировать знание дорожных знаков и указателей, а также всех правил, касающихся движения тяжелых грузовиков, легковых автомобилей или автобусов с прицепом. Самостоятельная подготовка к экзаменам сейчас запрещена: с 2013 года российские водители лишены возможности сдать на права экстерном.
Необходимо заключить договор, пройти обучение и сдать теоретическую часть, после этого кандидат получает допуск к практическому экзамену с инспектором ГИБДД. Категория «Е» — особый тип прав, рассчитанный на управление самым сложным видом транспортного средства: автомобилем с прицепом. Такая машина требует ответственного отношения водителя и внимания к другим участникам движения. Строгие правила ГИБДД можно назвать обоснованными, так как любая авария с участием таких автомобилей может стать причиной настоящей катастрофы.
Основные условия Для эксплуатации состава «прицеп + машина» нужны новые права. Чтобы понять, когда надо обязательно открыть к В категорию Е, надо определить весовые характеристики состава ТС.
Согласно пункту 1.2 главы 1 ПДД, прицеп считается механическим транспортным средством без двигателя. Его надо зарегистрировать в ГИБДД и получить номерные знаки.
Сцепляется он с авто с помощью фаркопа. Прицеп полной массой до 750 кг может не оборудоваться тормозами. Массой свыше 750 кг определяется как тяжелый, поэтому должен обязательно оборудоваться тормозами.
Его эксплуатировать в большинстве случаев без категории Е нельзя. Важны технические характеристики тягача (машины) — полная масса и тип двигателя.
Для буксировки тяжелых прицепов легковым автомобилем оптимальный вариант — двигатель дизельный. Он дает большой крутящий момент, что особенно важно при подъеме в гору.
Помните, как в одном американском фильме полицейские никак не могли догнать машину, за рулём которой сидел малыш? Автобус, подходящий под категорию DE Действительно, тесная связь сегодняшних детей с миром компьютеров способна взрастить гениальных людей. Если раньше, чтобы обучиться езде, нужно было затрачивать много сил и на практике проходить экзамен, сегодня это не совсем так. Большинство детей, которые играют в компьютерные гонки, уже обучаются дистанционно. Но всё же категория E — это нечто иное. Здесь одними визуальными составляющими не обойтись.
Нужно реально учиться, чтобы приобрести навык. Водители, у которых имеется категория E, — это настоящие профессионалы. Им нужно уметь управлять не просто автомобилем, а целым автопоездом.
Как-то раз один дальнобойщик, перевозивший груз, нормально доехал до склада. Ему нужно было заехать в ворота, но только задом. Такова была ситуация.
Кроме того, программа обучения содержит темы по правилам дорожного движения, оказанию первой помощи пострадавшим, а также ответственности водителя за правонарушения. Практические занятия включают отработку всех необходимых умений на автодроме, после завершения курса необходимо сдать экзамен в ГИБДД. Он включает теоретическую и практическую часть, теория сдается по билетам или в виде тестов установленного образца. Практический экзамен включает в себя выполнение заданий на автодроме, а также движение по дорогам в городе. На автодроме необходимо выполнить два вида упражнений: это постановка задним бортом к платформе и движение по прямой задним ходом. Для автомобиля с тяжеловесным прицепом эти упражнения имеют особое значение, поэтому их сдавать придется обязательно.
Можно открыть новую категорию удостоверения и не сдавая индивидуальной части экзамена, но тогда только, когда автомобилист сдавал на имеющиеся права не раньше, чем 3 месяца спустя. Когда сдача экзамена проходила чуть больше месяца, то понадобиться сдавать полностью.
Помимо этого каждая категория водительского удостоверения выдается в определенном возрасте. Если придерживаться правил дорожного движения, то для изучения теории нет никаких возрастных границ.
Это очень даже поощряется. Практически во всех книжный магазинах, где есть большой выбор книг, можно заполучить ПДД, которые установлены нынешним законодательством. Очень правильным будет изучать управление автотранспортом с самого детства. Это не все еще. Со школьного возраста можно осваивать экзаменационные билеты, которые можно приобрести в магазине.
Сейчас с этим могут возникнуть сложности: недавно были введены новые правила работы автошкол, которым сейчас соответствуют не все организации. При выборе учебной площадки нужно убедиться, что организация прошла аккредитацию и имеет право учить водителей на категорию «Е».
Сейчас такая история покажется вам смешной, как можно не уметь управлять машиной? Раньше так оно и было. Даже по истечению войны, эта профессия так и осталась востребованной.
Каждый год, много людей желало, обучаться на таких курсах. Еще при ДОСААФе формировались индивидуальные занятия.
Такую профессию можно было получить и служа в армии. После дембеля планировали работать водителями. Поначалу были только классы, и не выдавали никаких категорий.
Скажем, были водителя 3, 2, 1 класса. Билеты для экзаменов можно было купить в киосках, впрочем, ничего не изменилось в этом плане, и сейчас, все также билеты можно приобрести во — многих киосках. Вот только водитель нынешней категории E, раньше считался как 1 класса, и он считался самым высоким. Тогда все желали иметь 2 класс. Автомобилисты первых классов, являлись избранными, специалистами, до их мастерства еще долго предстояло обучаться.
advokat-burilov.ru
Чтобы успешно сдать теоретический экзамен на знание правил дорожного движения (ПДД) в ГИБДД, необходимо подготовиться, выучив все 40 экзаменационных билетов. Сайт экзамен-пдд-онлайн.рф предлагает вам пройти бесплатную теоретическую подготовку по официальным билетам ГИБДД / ГАИ.
Наш онлайн экзамен-тест имитирует реальный экзамен в ГИБДД на право управления транспортными средствами категорий «A», «B», «M» и «C», «D». Вы можете пройти курс обучения по 40 официальным билетам или выбрать режим экзамена, пройдя его по новым правилам сдачи в ГИБДД, которые были введены с 01.09.2016.
До 1 сентября для успешной сдачи экзамена ПДД онлайн, необходимо было ответить на 20 вопросов, на 2 из которых допускалось сделать ошибки, в этом случае экзамен считался успешно пройденным. С 1 сентября 2016 года сдача теоретичесткого экзамена усложнилась. Теперь каждый билет разбит на четыре группы по пять вопросов (1 группа — 1-5 вопросы, 2 группа — 6-10 вопросы, 3 группа — 11-15 вопросы, 4 группа — 16-20 вопросы). В группе можно сделать 1 ошибку, при наличии которой вам будет предложено ответить на 5 дополнительных вопросов той же группы, которые будут подобраны из других билетов. Ошибки в дополнительных вопросах не допускаются. Всего в билете можно ошибиться 2 раза, но в разных группах вопросов. При двух ошибках в одной группе экзамен будет считаться непройденным. Для ответа на каждый экзаменационный билет дается 20 мин. На каждые пять дополнительных вопросов даются дополнительные 5 минут времени. При наличии двух ошибок (в разных группах вопросов) вам будет необходимо ответить дополнительно на 10 вопросов за добавленные 10 минут, т.е. всего 30 вопросов и пол часа времени при максимально допустимом количестве неверных ответов.
При прохождение билетов, если вы не уверены в правильном ответе или не знаете его, можно воспользоваться «Подсказкой» (справа под вариантами ответа). Отвечая на вопросы, в каждом билете вы можете видеть вверху количество правильных и неправильных ответов, которое отображено в виде пиктограмм. После ответов на все 20 экзаменационных вопросов будет отображаться: количество правильных ответов, количество использованных подсказок, вопросы с неверными ответами с комментариями из правил дорожного движения, правильные ответы и ваши ответы.
Содержание билетов (картинки и текст вопросов) по Правилам Дорожного Движения полностью соответствует официально утвержденным экзаменационным билетам ГУОБДД МВД России с изменениями от 21 декабря 2018 года (21.12.2018 вступили в силу изменения в ПДД)
xn——6kccsaeozbsgoedln8v.xn--p1ai